Bungalow. Nouvelle construction Roda Golf · Los Alcazares · Costa Cálida (Murcia)

Bungalow. Nouvelle construction Roda Golf · Los Alcazares · Costa Cálida (Murcia)

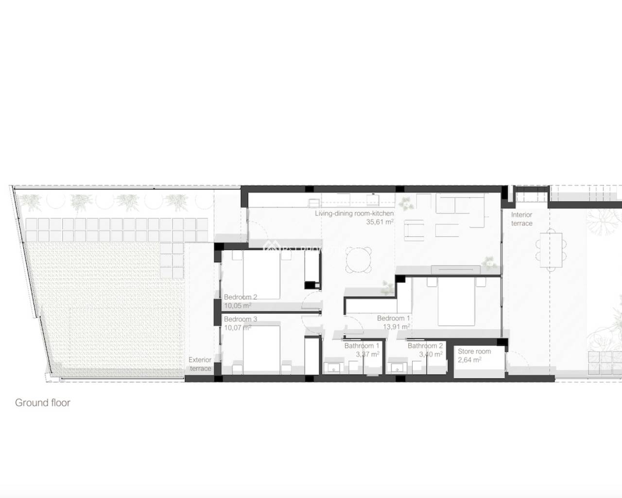
  • Mètres. 94m2
  • Chambres
    Chambres. 3
  • Salles de bain
    Salles de bain. 2
  • Toilettes
    Toilettes. 2
  • Garage
    Garage. Place de parking
  • Piscine
    Piscine. Communauté

Description

Bungalows de luxe à Roda Golf – Vivre dans un lieu unique sur la Costa Cálida

Vous rêvez d’un logement élégant sous le soleil espagnol, dans un environnement paisible et sécurisé, tout en étant proche de la plage et de l’animation côtière ? Ces magnifiques bungalows situés dans le prestigieux complexe Roda Golf offrent une combinaison parfaite de confort, de luxe et d’un emplacement privilégié.

À seulement 3 kilomètres des plages ensoleillées de la Mar Menor et à proximité de la charmante ville côtière de Los Alcázares, ce resort est le point de départ idéal pour ceux qui recherchent détente, sport et praticité. Le complexe résidentiel fermé dégage une atmosphère de tranquillité et d’exclusivité, avec un élégant club-house, une salle de sport moderne et diverses installations sportives entourées d’espaces verts soigneusement entretenus.

Les services essentiels, tels que supermarchés et commerces, se trouvent à seulement 500 mètres, ce qui rend la vie quotidienne simple et agréable. Que vous recherchiez une résidence principale, une maison de vacances ou un investissement locatif rentable, ces logements répondent à toutes les attentes.

Deux types de logements sont disponibles, chacun avec ses atouts particuliers :

 Les bungalows en rez-de-chaussée disposent d’une grande terrasse et d’un jardin privé – idéals pour profiter du climat méditerranéen en toute intimité.
 Les appartements à l’étage bénéficient d’un balcon ainsi que d’un vaste solarium équipé d’une cuisine extérieure et offrant une vue panoramique spectaculaire – parfait pour les dîners au coucher du soleil ou les moments de détente.

Tous les logements sont prêts à emménager et bénéficient de finitions de haute qualité. L’éclairage complet ainsi que les appareils électroménagers modernes sont inclus, pour un confort immédiat dès votre arrivée. Une belle piscine commune, entourée de palmiers et de zones de repos, complète le tout pour une ambiance de pur bien-être.

Avec son emplacement exceptionnel, son accès facile et ses prestations haut de gamme, ce projet représente une opportunité unique sur la Costa Cálida. Laissez-vous séduire par le charme de Roda Golf et découvrez le meilleur de la vie dans le sud de l’Espagne.


Caractéristiques

Année de construction: 2025
Chambres: 3
Salles de bain: 2
Toilettes: 2
Surface construit: 94m2
Terrasse: 53 m2
Piscine: Communauté
Garage: Place de parking
Armoires encastrées: 3
Orientation: Sud
Distance à la plage: 4 km
Distance à l'aéroport: 38 km
Distance aux loisirs: 0,5 km
Volets roulants automatique
Communauté fermée
Adapté aux utilisateurs de fauteuils roulants
Internet
Proche des magasins / restaurants
Jardin planté
Électroménager
Buanderie
Sur parcours de golf
Terrasse
Place de parking
Pré installation de climatisation
Piscine commune
Vue sur piscine
Vue sur jardin
Cuisine ouverte
Jardin commun
Terrasse couverte
Allée

Emplacement

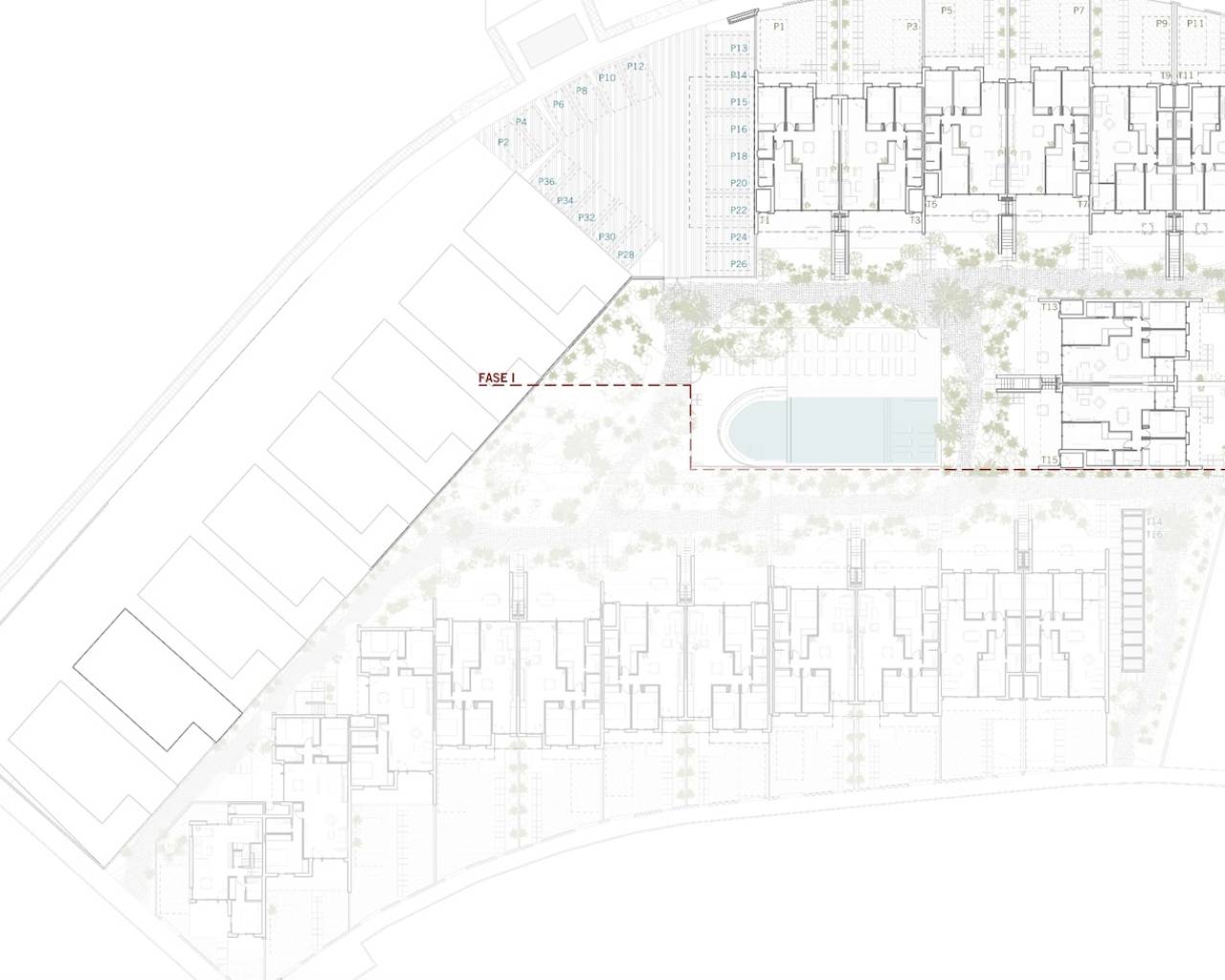
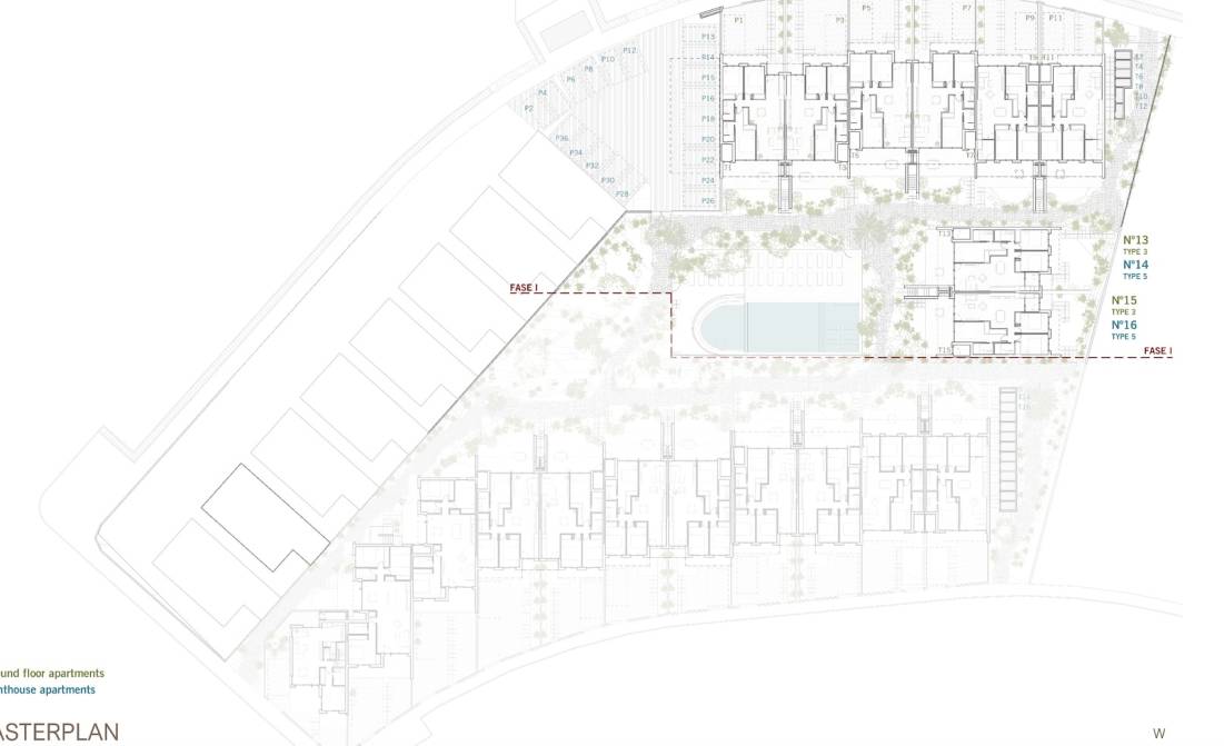
Plans

Contactez B&L PromotionsFaire une demande

Responsable del tratamiento: B&L PROMOTIONS COSTA BLANCA, Finalidad del tratamiento: Gestión y control de los servicios ofrecidos a través de la página Web de Servicios inmobiliarios, Envío de información a traves de newsletter y otros, Legitimación: Por consentimiento, Destinatarios: No se cederan los datos, salvo para elaborar contabilidad, Derechos de las personas interesadas: Acceder, rectificar y suprimir los datos, solicitar la portabilidad de los mismos, oponerse altratamiento y solicitar la limitación de éste, Procedencia de los datos: El Propio interesado, Información Adicional: Puede consultarse la información adicional y detallada sobre protección de datos Aquí.
WhatsApp