Bungaló. Új építésű ingatlan Costa Cálida (Murcia) · Los Alcazares · Roda Golf

Bungaló. Új építésű ingatlan Costa Cálida (Murcia) · Los Alcazares · Roda Golf

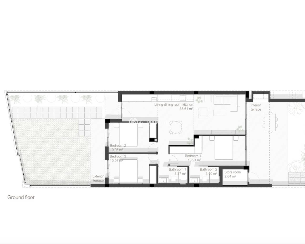
  • Métersz. 94m2
  • Hálószobák
    Hálószobák. 3
  • Fürdőszobák
    Fürdőszobák. 2
  • WC-k
    WC-k. 2
  • Garázs
    Garázs. Parkolóhely
  • Úszómedence
    Úszómedence. Közösségi

Jellemzők

Építés éve: 2025
Hálószobák: 3
Fürdőszobák: 2
WC-k: 2
Beépített terület: 94m2
Terasz: 53 m2
Úszómedence: Közösségi
Garázs: Parkolóhely
Beépített szekrények: 3
Fekvés: Dél
Távolság tengerparttól: 4 km
Távolság repülőtértől: 38 km
Távolság szórakozási lehetőségektől: 0,5 km
Üzletek / éttermek közelében
Beültetett kert
Háztartási gépek
Mosókonyha
Golfpályán
Terasz
Parkolóhely
Légkondícionáló berendezés előkészítés
Közösségi úszómedence
Kilátás úszómedencére
Kilátás kertre
Nyitott konyha
Közös kert
Fedett terasz
Autóbejáró
Elektromos redőny
Zárt lakópark
Mozgáskorlátozottaknak megfelelő kialakítás
Internet

Fekvés

Tervrajzok

Lépjen kapcsolatba velünkÉrdeklődés küldése

Responsable del tratamiento: B&L PROMOTIONS COSTA BLANCA, Finalidad del tratamiento: Gestión y control de los servicios ofrecidos a través de la página Web de Servicios inmobiliarios, Envío de información a traves de newsletter y otros, Legitimación: Por consentimiento, Destinatarios: No se cederan los datos, salvo para elaborar contabilidad, Derechos de las personas interesadas: Acceder, rectificar y suprimir los datos, solicitar la portabilidad de los mismos, oponerse altratamiento y solicitar la limitación de éste, Procedencia de los datos: El Propio interesado, Información Adicional: Puede consultarse la información adicional y detallada sobre protección de datos Aquí.

Hasonló ingatlanok

WhatsApp