Apartman. Új építésű ingatlan Costa Cálida (Murcia) · Torre Pacheco · Santa Rosalia

Apartman. Új építésű ingatlan Costa Cálida (Murcia) · Torre Pacheco · Santa Rosalia

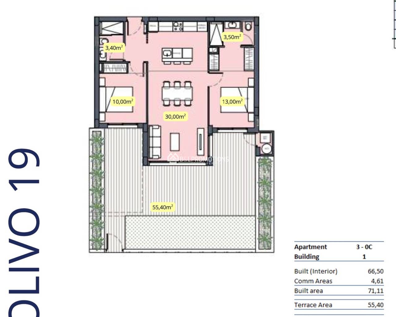
  • Métersz. 95m2
  • Hálószobák
    Hálószobák. 2
  • Fürdőszobák
    Fürdőszobák. 2
  • WC-k
    WC-k. 2
  • Garázs
    Garázs. Parkolóhely
  • Úszómedence
    Úszómedence. Közösségi

Jellemzők

Építés éve: 2026
Hálószobák: 2
Fürdőszobák: 2
WC-k: 2
Beépített terület: 95m2
Terasz: 30 m2
Úszómedence: Közösségi
Garázs: Parkolóhely
Parkolóhelyek: 1
Konyha: 1
Beépített szekrények: 2
Fekvés: Nyugat
Távolság tengerparttól: 0,3 km
Távolság repülőtértől: 30 km
Távolság szórakozási lehetőségektől: 0,8 km
Távolság golfpályától: 3 km
Terasz
Parkolóhely
Tárolóhelyiség
Légkondícionáló berendezés hőszivattyúval
Padlófűtés
Fűtött úszómedence
Kilátás úszómedencére
Kilátás kertre
Nyitott konyha
Erkély
Kerti grillsütő
Közös kert
Fedett terasz
Autóbejáró
Elektromos redőny
Lift
Garázs
Zárt lakópark
Mozgáskorlátozottaknak megfelelő kialakítás
Internet
Üzletek / éttermek közelében
Beültetett kert
Turisztikai szomszédság
Háztartási gépek

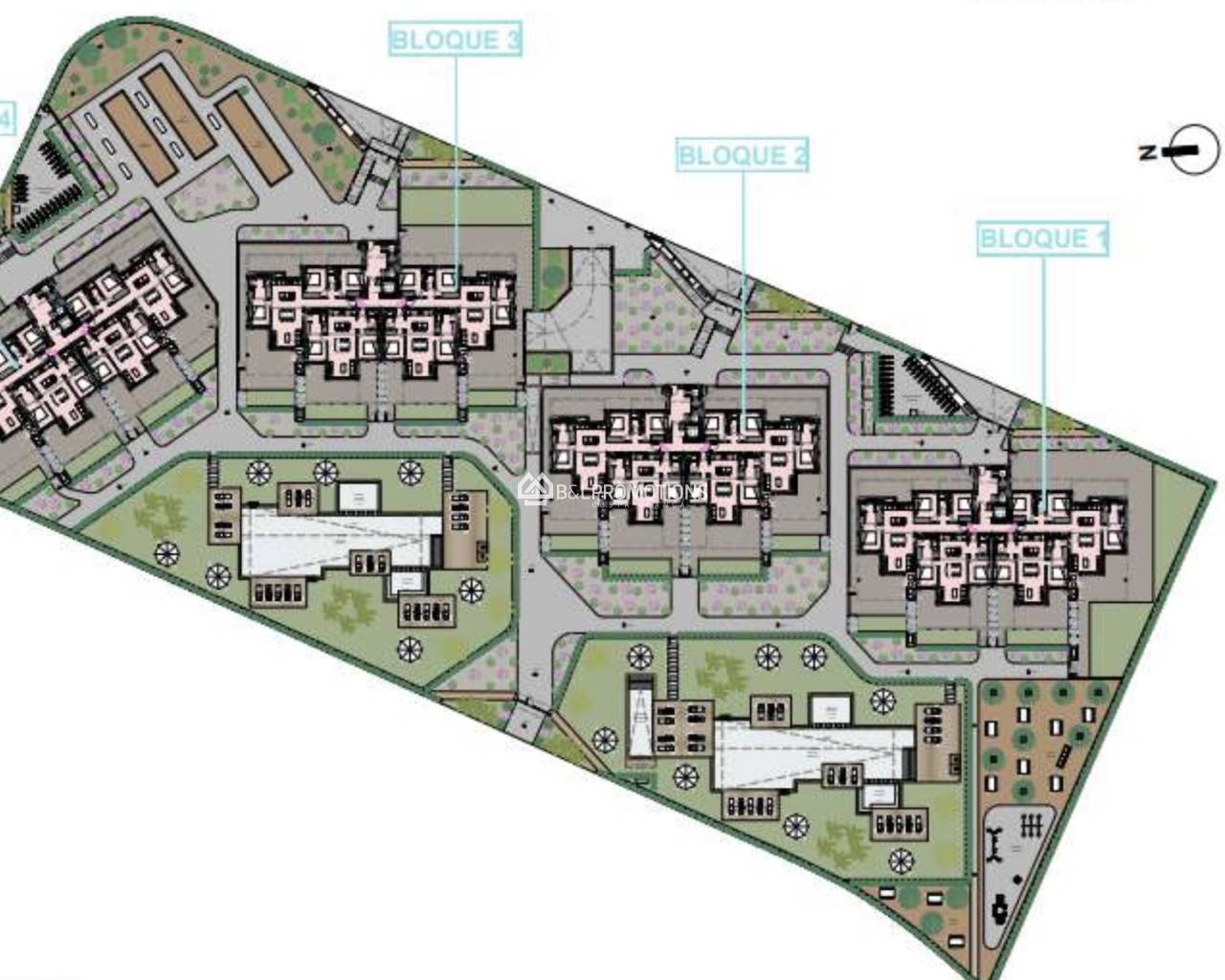
Fekvés

Tervrajzok

Lépjen kapcsolatba velünkÉrdeklődés küldése

Responsable del tratamiento: B&L PROMOTIONS COSTA BLANCA, Finalidad del tratamiento: Gestión y control de los servicios ofrecidos a través de la página Web de Servicios inmobiliarios, Envío de información a traves de newsletter y otros, Legitimación: Por consentimiento, Destinatarios: No se cederan los datos, salvo para elaborar contabilidad, Derechos de las personas interesadas: Acceder, rectificar y suprimir los datos, solicitar la portabilidad de los mismos, oponerse altratamiento y solicitar la limitación de éste, Procedencia de los datos: El Propio interesado, Información Adicional: Puede consultarse la información adicional y detallada sobre protección de datos Aquí.
WhatsApp