Villa. Új építésű ingatlan Dél-Costa Blanca (Alicante) · Alicante · La Finca Golf

Villa. Új építésű ingatlan Dél-Costa Blanca (Alicante) · Alicante · La Finca Golf

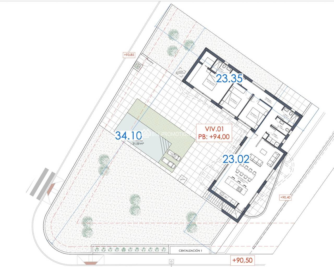
  • Métersz. 98m2
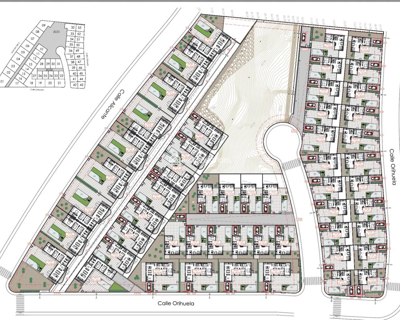
  • Telek. 252m2
  • Hálószobák
    Hálószobák. 3
  • Fürdőszobák
    Fürdőszobák. 2
  • WC-k
    WC-k. 2
  • Garázs
    Garázs. Parkolóhely
  • Úszómedence
    Úszómedence. Privát

Jellemzők

Építés éve: 2026
Hálószobák: 3
Fürdőszobák: 2
WC-k: 2
Beépített terület: 98m2
Telek: 252m2
Terasz: 36 m2
Úszómedence: Privát
Garázs: Parkolóhely
Konyha: 1
Beépített szekrények: 3
Fekvés: Délkelet
Távolság tengerparttól: 12 km
Távolság repülőtértől: 38 km
Távolság szórakozási lehetőségektől: 0,4 km
Üzletek / éttermek közelében
Mosógép
Privát kert
Golfpályán
Parkolóhely
Légkondícionáló berendezés előkészítés
Privát úszómedence
Tetőterasz
Kilátás úszómedencére
Kilátás kertre
Nyitott konyha
Elektromos redőny
Internet

Fekvés

Tervrajzok

Lépjen kapcsolatba velünkÉrdeklődés küldése

Responsable del tratamiento: B&L PROMOTIONS COSTA BLANCA, Finalidad del tratamiento: Gestión y control de los servicios ofrecidos a través de la página Web de Servicios inmobiliarios, Envío de información a traves de newsletter y otros, Legitimación: Por consentimiento, Destinatarios: No se cederan los datos, salvo para elaborar contabilidad, Derechos de las personas interesadas: Acceder, rectificar y suprimir los datos, solicitar la portabilidad de los mismos, oponerse altratamiento y solicitar la limitación de éste, Procedencia de los datos: El Propio interesado, Información Adicional: Puede consultarse la información adicional y detallada sobre protección de datos Aquí.
WhatsApp