Bungaló. Új építésű ingatlan Costa Cálida (Murcia) · Torre Pacheco · Santa Rosalia

Bungaló. Új építésű ingatlan Costa Cálida (Murcia) · Torre Pacheco · Santa Rosalia

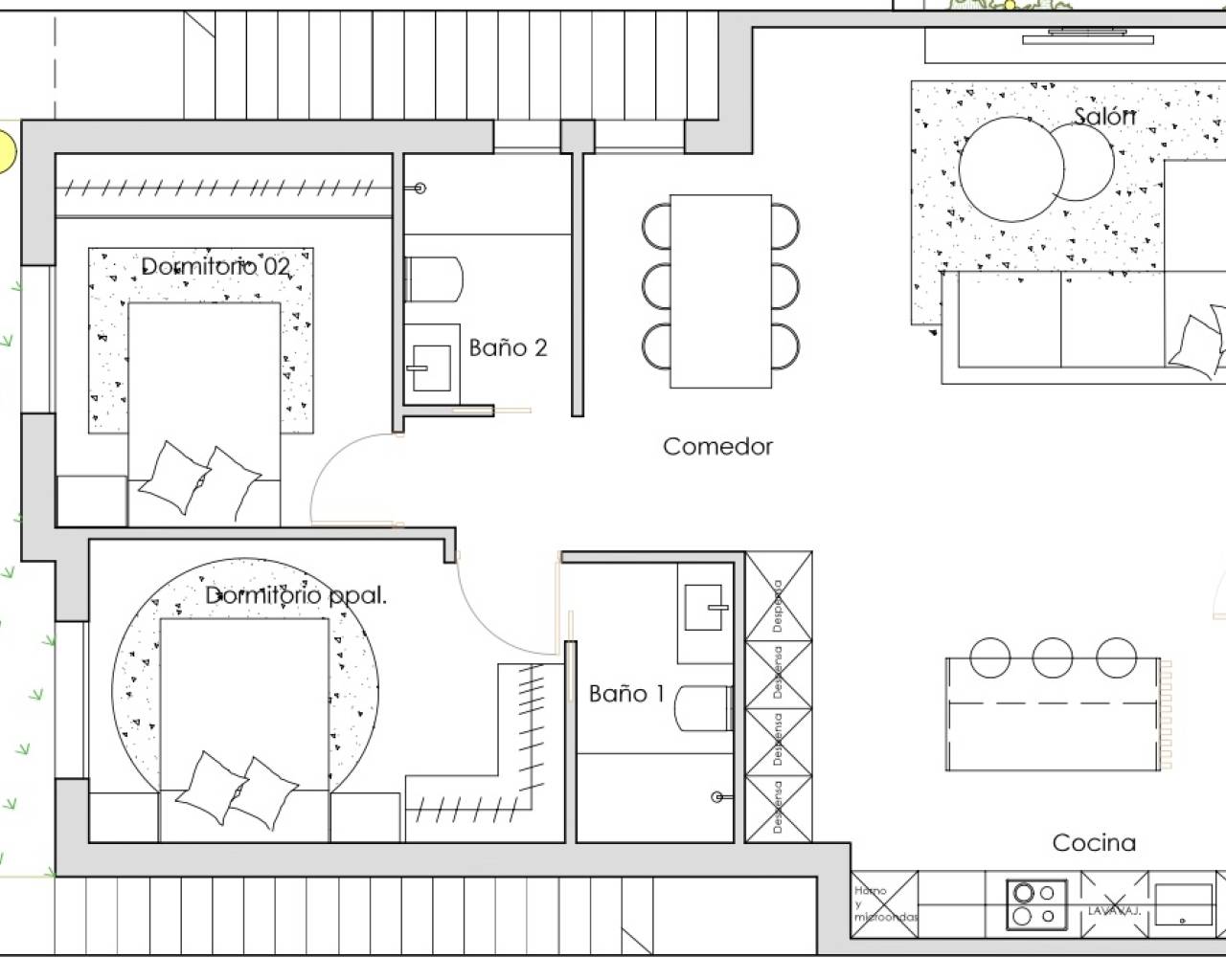
  • Métersz. 97m2
  • Hálószobák
    Hálószobák. 2
  • Fürdőszobák
    Fürdőszobák. 2
  • WC-k
    WC-k. 2
  • Garázs
    Garázs. Parkolóhely
  • Úszómedence
    Úszómedence. Közösségi

Jellemzők

Építés éve: 2026
Hálószobák: 2
Fürdőszobák: 2
WC-k: 2
Beépített terület: 97m2
Terasz: 17 m2
Úszómedence: Közösségi
Garázs: Parkolóhely
Beépített szekrények: 2
Fekvés: Délkelet
Távolság tengerparttól: 0,5 km
Távolság repülőtértől: 30 km
Távolság szórakozási lehetőségektől: 1 km
Távolság golfpályától: 3 km
Terasz
Parkolóhely
Légkondícionáló berendezés hőszivattyúval
Padlófűtés
Közösségi úszómedence
Kilátás úszómedencére
Kilátás kertre
Nyitott konyha
Közös kert
Fedett terasz
Elektromos redőny
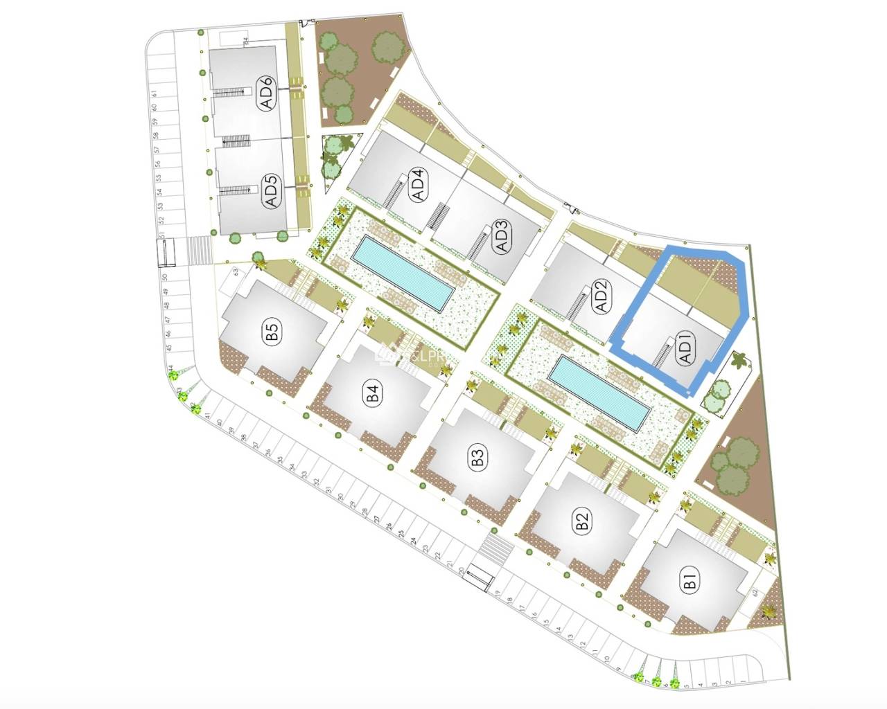
Zárt lakópark
Internet
Üzletek / éttermek közelében
Beültetett kert
Turisztikai szomszédság
Alagsor
Háztartási gépek
Mosókonyha
Teniszpálya

Fekvés

Tervrajzok

Lépjen kapcsolatba velünkÉrdeklődés küldése

Responsable del tratamiento: B&L PROMOTIONS COSTA BLANCA, Finalidad del tratamiento: Gestión y control de los servicios ofrecidos a través de la página Web de Servicios inmobiliarios, Envío de información a traves de newsletter y otros, Legitimación: Por consentimiento, Destinatarios: No se cederan los datos, salvo para elaborar contabilidad, Derechos de las personas interesadas: Acceder, rectificar y suprimir los datos, solicitar la portabilidad de los mismos, oponerse altratamiento y solicitar la limitación de éste, Procedencia de los datos: El Propio interesado, Información Adicional: Puede consultarse la información adicional y detallada sobre protección de datos Aquí.
WhatsApp