Chalet independiente. Nueva construcción Pinoso · Alicante · Costa Blanca Sur (Alicante)

Chalet independiente. Nueva construcción Pinoso · Alicante · Costa Blanca Sur (Alicante)

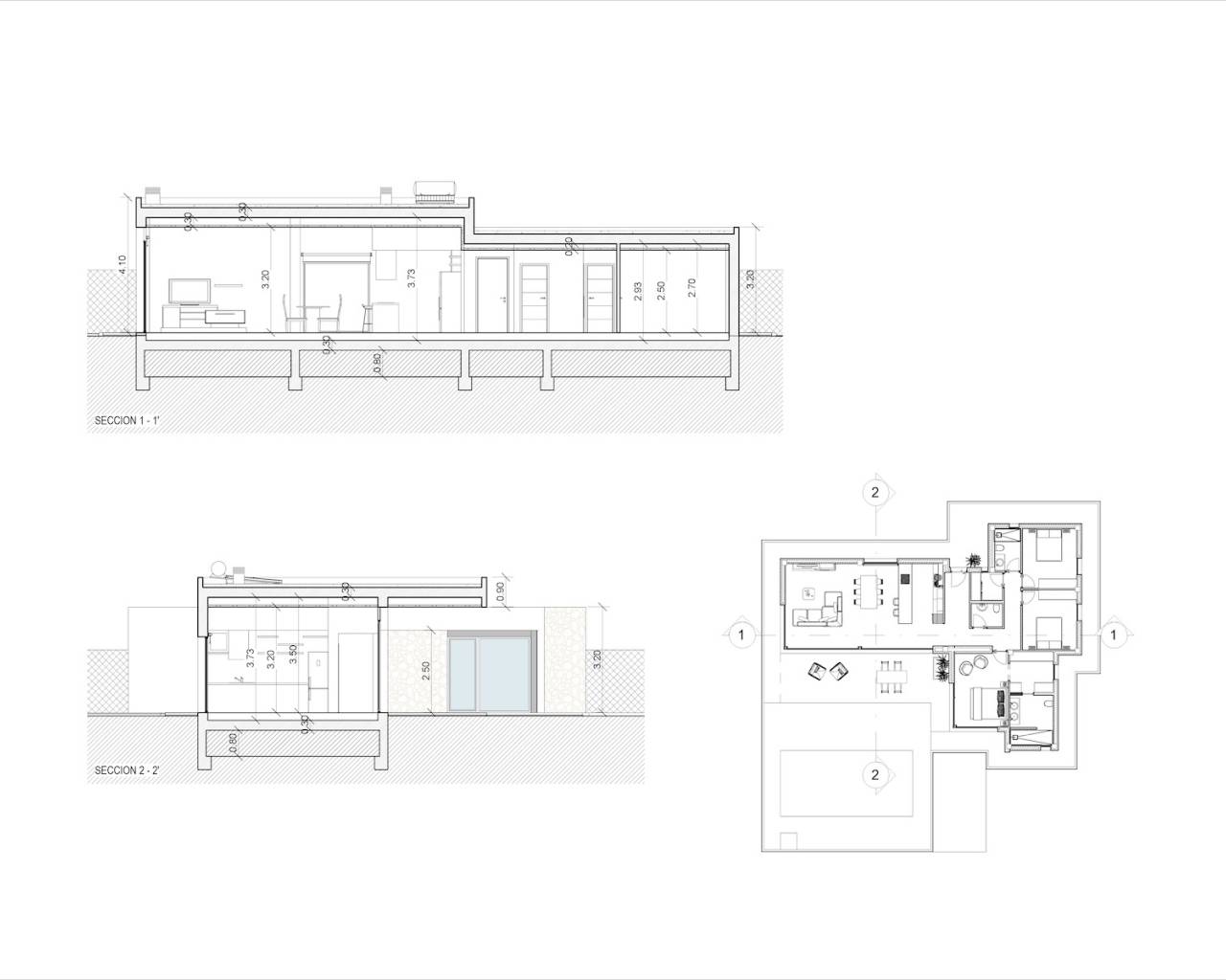
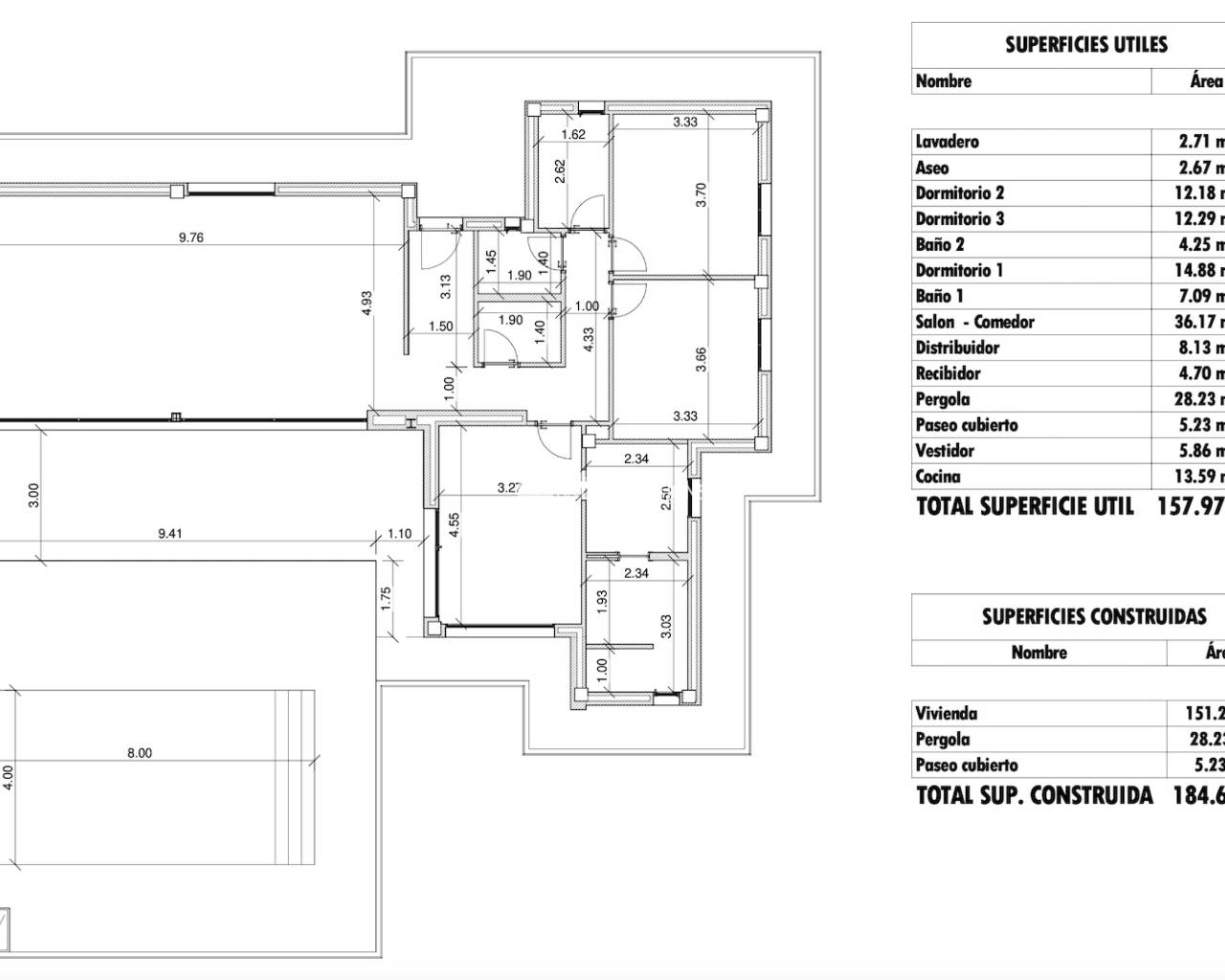
  • Metros. 185m2
  • Parcela. 10.959m2
  • Habitaciones
    Habitaciones. 3
  • Baños
    Baños. 2
  • Aseos
    Aseos. 2
  • Garaje
    Garaje. Plaza de parking
  • Piscina
    Piscina. Privada

Descripción

Precioso chalet para construir en una amplia parcela en La Romana en Aspe.
Situado cerca de Alicante en medio de la naturaleza y la tranquilidad.
Las parcelas están a poca distancia de varios pueblos típicos españoles donde se puede encontrar todo lo necesario como tiendas, restaurantes y supermercados.
También hay un mercado semanal en varios de estos pueblos.
Esta hermosa villa de lujo se construirá en una parcela de +/- 10.000m2 de los cuales unos 2500m2 estarán vallados y se podrán utilizar como jardín.
Por supuesto, hay una gran piscina privada y un montón de espacio para plantar árboles, etc.
La espaciosa casa tiene 3 dormitorios, 2 baños, salón muy amplio y cocina abierta, así como un trastero, terraza y piscina.
Los acabados de estas casas son de primera calidad y los materiales utilizados son los mejores actualmente en el mercado.
Maravillosa villa para personas que aman la paz y la tranquilidad, hermosas vistas y privacidad lejos de todas las multitudes de turistas.

Características

Año de construcción: 2024
Habitaciones: 3
Baños: 2
Aseos: 2
Superficie construida: 185m2
Parcela: 10.959m2
Terraza: 32 m2
Piscina: Privada
Garaje: Plaza de parking
Cocinas: 1
Armarios empotrados: 3
Orientación: Sur
Distancia a la playa: 25 km
Distancia al aereopuerto: 15 km
Distancia al ocio: 3 km
Distancia al campo de golf: 4 km
Jardín privado
Terraza
Plaza de aparcamiento
Trastero
Pre-instalación de aire acondicionado
Piscina privada
Suelo radiante
Vista panorámica
Cocina abierta
Terraza cubierta
Entrada para vehículos
Lavadora
Jardín
Piscina privada

Localización

Planos

Contacta con B&L PromotionsHacer una consulta

Responsable del tratamiento: B&L PROMOTIONS COSTA BLANCA, Finalidad del tratamiento: Gestión y control de los servicios ofrecidos a través de la página Web de Servicios inmobiliarios, Envío de información a traves de newsletter y otros, Legitimación: Por consentimiento, Destinatarios: No se cederan los datos, salvo para elaborar contabilidad, Derechos de las personas interesadas: Acceder, rectificar y suprimir los datos, solicitar la portabilidad de los mismos, oponerse altratamiento y solicitar la limitación de éste, Procedencia de los datos: El Propio interesado, Información Adicional: Puede consultarse la información adicional y detallada sobre protección de datos Aquí.

Propiedades similares

WhatsApp