Chalet independiente. Nueva construcción Vistabella Golf · Orihuela · Costa Blanca Sur (Alicante)

Chalet independiente. Nueva construcción Vistabella Golf · Orihuela · Costa Blanca Sur (Alicante)

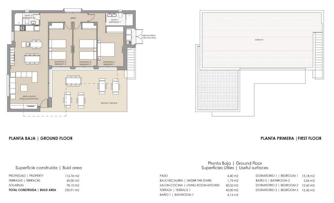
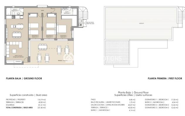
  • Metros. 120m2
  • Parcela. 298m2
  • Habitaciones
    Habitaciones. 3
  • Baños
    Baños. 2
  • Aseos
    Aseos. 2
  • Garaje
    Garaje. Plaza de parking
  • Piscina
    Piscina. Privada

Descripción

Descubra este exclusivo proyecto de obra nueva en el apreciado Vistabella Golf Resort, una urbanización cerrada y rodeada de zonas verdes, que ya cuenta con todos los servicios necesarios a su alcance. Desde acogedores restaurantes y tiendas hasta diversas instalaciones deportivas y un espectacular campo de golf de 18 hoyos, con un moderno club social que estará disponible muy pronto: aquí podrá disfrutar de la comodidad y la tranquilidad en un entorno seguro y cuidado.

En este resort se construirán magníficas y modernas villas de 3 dormitorios, todas en una sola planta, con piscina privada, perfectas para aprovechar el sol mediterráneo durante todo el año. Las viviendas destacan por su diseño contemporáneo y acabados de alta calidad, incluyendo numerosos extras ya en el precio: aire acondicionado, electrodomésticos completos, iluminación y la preinstalación para una cocina exterior.

Estas villas combinan confort, lujo y una ubicación privilegiada en plena naturaleza, pero a la vez cerca de la costa, de todos los servicios y con excelentes conexiones. ¡Una oportunidad única para invertir en la casa de sus sueños bajo el sol de España!


Características

Año de construcción: 2025
Habitaciones: 3
Baños: 2
Aseos: 2
Superficie construida: 120m2
Parcela: 298m2
Terraza: 40 m2
Piscina: Privada
Garaje: Plaza de parking
Cocinas: 1
Armarios empotrados: 3
Orientación: Sureste
Distancia a la playa: 20 km
Distancia al aereopuerto: 40 km
Distancia al ocio: 0,5 km
Terraza cubierta
Persianas eléctricas
Internet
Cerca de tiendas / restaurantes
Electrodomésticos
Jardín privado
En campo de golf
Pista de tenis
Terraza
Plaza de aparcamiento
Aire acondicionado con bomba de calor
Piscina privada
Solarium
Vista a la piscina
Vista al jardín
Cocina abierta

Localización

Planos

Contacta con B&L PromotionsHacer una consulta

Responsable del tratamiento: B&L PROMOTIONS COSTA BLANCA, Finalidad del tratamiento: Gestión y control de los servicios ofrecidos a través de la página Web de Servicios inmobiliarios, Envío de información a traves de newsletter y otros, Legitimación: Por consentimiento, Destinatarios: No se cederan los datos, salvo para elaborar contabilidad, Derechos de las personas interesadas: Acceder, rectificar y suprimir los datos, solicitar la portabilidad de los mismos, oponerse altratamiento y solicitar la limitación de éste, Procedencia de los datos: El Propio interesado, Información Adicional: Puede consultarse la información adicional y detallada sobre protección de datos Aquí.

Propiedades similares

WhatsApp