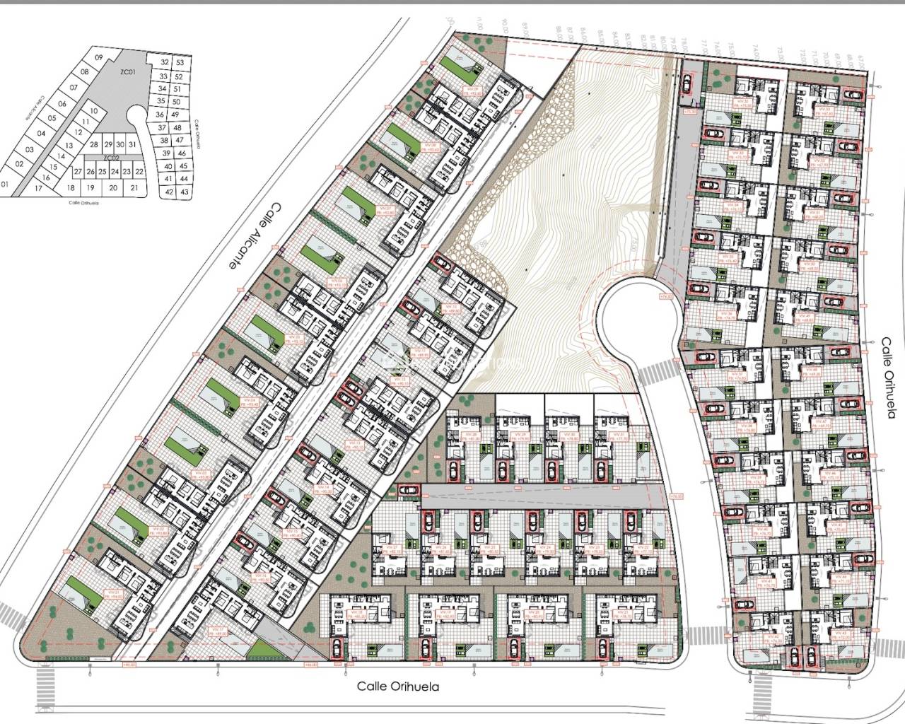
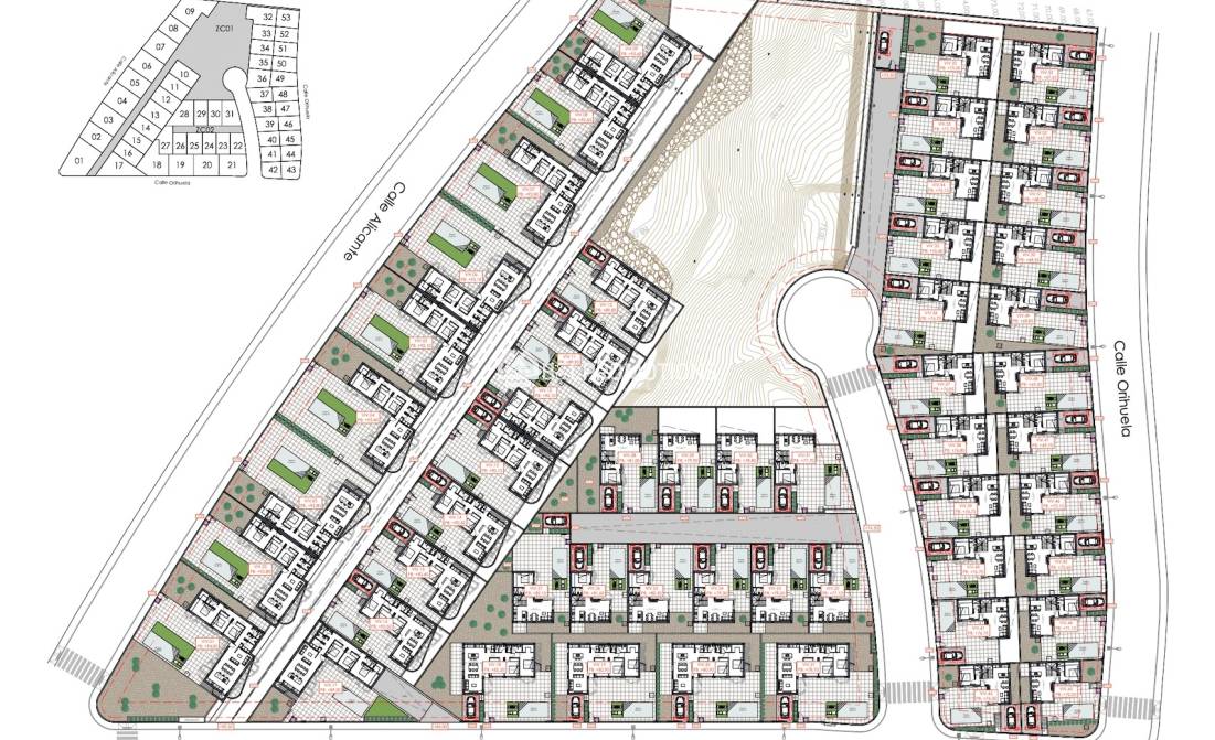
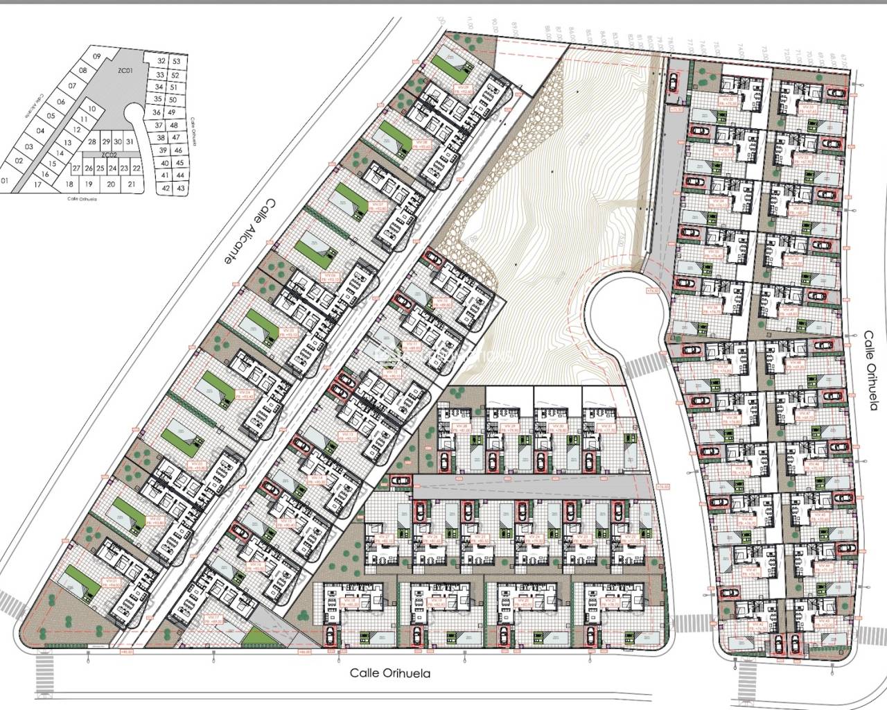
Chalet independiente. Nueva construcción La Finca Golf · Alicante · Costa Blanca Sur (Alicante)

Chalet independiente. Nueva construcción La Finca Golf · Alicante · Costa Blanca Sur (Alicante)

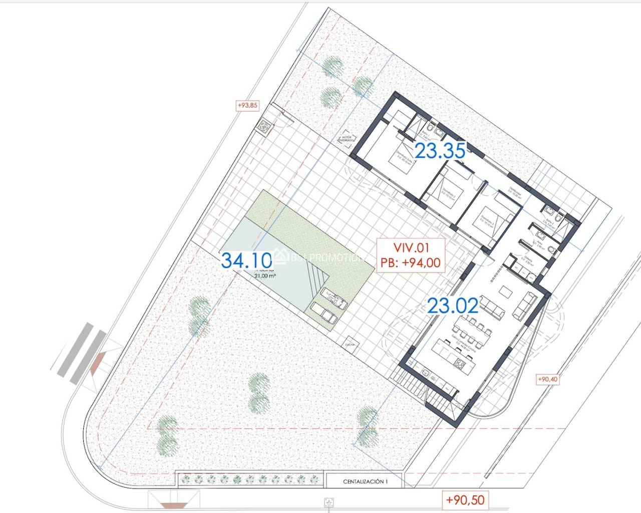
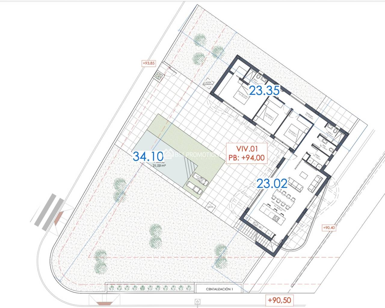
  • Metros. 135m2
  • Parcela. 440m2
  • Habitaciones
    Habitaciones. 3
  • Baños
    Baños. 2
  • Aseos
    Aseos. 3
  • Garaje
    Garaje. Plaza de parking
  • Piscina
    Piscina. Privada

Descripción

Descubra estas exclusivas villas de obra nueva en dos plantas situadas en el prestigioso La Finca Golf Resort, donde el lujo, el confort y una ubicación privilegiada se combinan a la perfección. Las viviendas cuentan con 3 amplios dormitorios y 2 elegantes baños, un luminoso salón y una moderna cocina abierta, diseñada para un estilo de vida contemporáneo.

Cada villa ha sido concebida cuidando hasta el más mínimo detalle y dispone de una gran terraza con piscina privada, ideal para disfrutar del excelente clima mediterráneo. Además, ofrece un solárium para mayor espacio exterior y relax, un trastero práctico y plaza de aparcamiento privada para el vehículo.

La ubicación es realmente excepcional: en un entorno exclusivo y tranquilo, cerca de Algorfa y a tan solo 15 minutos de las magníficas playas de Guardamar. Gracias a su excelente conexión, el aeropuerto de Alicante se encuentra a poca distancia.

Dentro del resort podrá disfrutar de una amplia gama de servicios, como instalaciones deportivas, wellness y fitness, tiendas y varios restaurantes de alta calidad. Las viviendas se construyen conforme a las últimas normativas y se entregan con acabados de alto nivel y gran lujo, garantizando calidad, confort y durabilidad.

Una opción ideal para quienes buscan vivir con exclusividad, disfrutar del descanso y realizar una excelente inversión en la Costa Blanca. ☀️????

Características

Año de construcción: 2026
Habitaciones: 3
Baños: 2
Aseos: 3
Superficie construida: 135m2
Parcela: 440m2
Terraza: 45 m2
Piscina: Privada
Garaje: Plaza de parking
Cocinas: 1
Armarios empotrados: 3
Orientación: Sureste
Distancia a la playa: 12 km
Distancia al aereopuerto: 38 km
Distancia al ocio: 0,4 km
Persianas eléctricas
Internet
Cerca de tiendas / restaurantes
Sótano
En campo de golf
Plaza de aparcamiento
Pre-instalación de aire acondicionado
Piscina privada
Solarium
Vista a la piscina
Vista al jardín
Cocina abierta
Terraza cubierta

Localización

Contacta con B&L PromotionsHacer una consulta

Responsable del tratamiento: B&L PROMOTIONS COSTA BLANCA, Finalidad del tratamiento: Gestión y control de los servicios ofrecidos a través de la página Web de Servicios inmobiliarios, Envío de información a traves de newsletter y otros, Legitimación: Por consentimiento, Destinatarios: No se cederan los datos, salvo para elaborar contabilidad, Derechos de las personas interesadas: Acceder, rectificar y suprimir los datos, solicitar la portabilidad de los mismos, oponerse altratamiento y solicitar la limitación de éste, Procedencia de los datos: El Propio interesado, Información Adicional: Puede consultarse la información adicional y detallada sobre protección de datos Aquí.
WhatsApp